6 Davidson Street ORAN PARK NSW 2570
4
2
2
Bright Spacious and Attractive
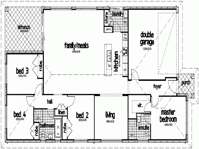
This perfectly located and well designed 4 bedroom home, with parks and playgrounds nearby, is also a few moments away from all amenities. Wide entrance access, spacious media/family room. All bedrooms are very generous in size with the main including walk in robe and ensuite. The kitchen is an open plan with large tiled living and dining areas flowing through to the backyard where the spacious alfresco awaits you for those BBQ evenings. It also includes Ducted air conditioning, a double lock up ... [More]
This perfectly located and well designed 4 bedroom home, with parks and playgrounds nearby, is also a few moments away from all amenities. Wide entrance access, spacious media/family room. All bedrooms are very generous in size with the main including walk in robe and ensuite. The kitchen is an open plan with large tiled living and dining areas flowing through to the backyard where the spacious alfresco awaits you for those BBQ evenings. It also includes Ducted air conditioning, a double lock up garage with internal access. This will impress.
- 4 Spacious bedrooms with built in wardrobes
- Main with walk in robe and ensuite
- Open plan kitchen with gas cooking and island benchtop
- Spacious and bright living and dining areas
- Separate media/family area
- Ducted air conditioning in time for summer
- Great looking back yard with low maintenance
- Large double lock up garage with internal access
- Well positioned to schools, shops and transport [Less]
- 4 Spacious bedrooms with built in wardrobes
- Main with walk in robe and ensuite
- Open plan kitchen with gas cooking and island benchtop
- Spacious and bright living and dining areas
- Separate media/family area
- Ducted air conditioning in time for summer
- Great looking back yard with low maintenance
- Large double lock up garage with internal access
- Well positioned to schools, shops and transport [Less]
Property Information
Type
Residential Lease
Price
LEASED
Property Type
House
Property Features
Built-ins • Dishwasher • Pet Friendly •